Продажа 1-комнатной квартиры

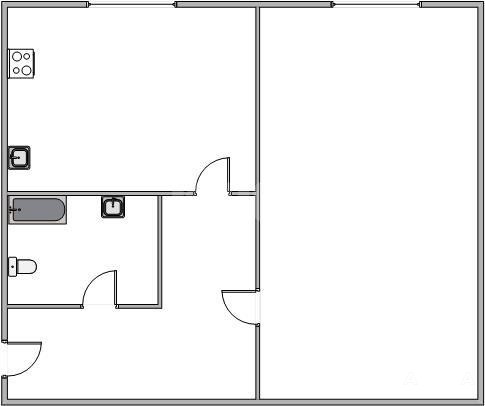
36 м²
Площадь
18 м²
Жилая площадь
9 м²
Площадь кухни
2/2
Этаж

300 000 ₽

8 242 ₽ за м²

ID объявления 10837172

Поделиться

Добавить в избранное

id:3820.
Вы в поиске недорогого жилья! Обратите внимание на наше предложение!
Продается 1-комнатная квартира на 2 этаже двухэтажного деревянного дома в районе Трубки. Общая площадь квартиры 36, 4 кв.м., площадь кухни 9 кв.м. 
- Квартира полностью благоустроена. 
-Требуется ремонт.
- Санузел совмещен. 

Обеспечим помощь в сборе необходимых документов для сделки.
Мы гарантируем полное юридическое сопровождение, что обеспечивает вашу защиту и спокойствие.

Рядом с домом находятся: детский сад, школа № 10, магазин, остановка общественного транспорта.
Квартира подходит под материнский капитал, помощь в оформлении. Звоните! Эта квартира может стать вашей!

Дата обновления: 30 июля 2025