Продажа 2х-комнатной квартиры

44 м²
Площадь
31 м²
Жилая площадь
7 м²
Площадь кухни
1/4
Этаж

1 770 000 ₽

40 228 ₽ за м²

ID объявления 11765313

Поделиться

Добавить в избранное

id:4169.
Недорогое жилье в самом Центре города. Не упустите такое предложение.

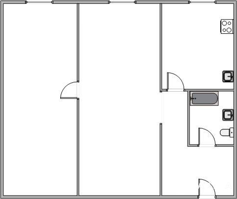
Продается 2-комнатная квартира на 1 этаже четырехэтажного кирпичного дома. Общая площадь - 44 кв.м., кухни - 7 кв.м.

- Отопление центральное, газ природный, холодное водоснабжение, горячая вода от системы отопления.
- Частично заменены трубы на пластик и радиатор в спальне.
- Санузел совмещен, есть место под водонагреватель.
- Имеется кладовая комната.
- Отличный вариант по бюджету, 1 взрослый собственник, без долгов и обременений.

Полное юридическое сопровождение сделки и помощь в оформлении ипотеки.

Вся инфраструктура рядом: школа, садики, магазины, библиотека, торговые центры, пункты выдачи.

Заинтересовало? Звоните. 

Дата обновления: 29 августа 2025

Квартира От собственника